Lokale forhold- Kalundborg planområde
Lokale forhold er et sammendrag af kommuneplanen gældende særligt for planområdet. På disse sider finder du information om den fysiske planlægning for bl.a. boliger, erhverv, udvikling af lokalmiljøer, rekreativ struktur, turisme og natur.
Boliger
I planområdet er udbygningsområder til boliger lokaliseret i BYOMRÅDERNE:
Kalundborg by
I Kalundborg by er der planlagt for 738 nye boliger i udbygningsområder og 200 boliger gennem omdannele.
- Areal vest for Hjorthøj med plads til ca. 41 boliger, hvoraf de 17 er lokalplanlagt (rammeområde K02.B02)
- Areal sydøst for Nyrup med plads til ca. 17 boliger (rammeområde K02.B06)
- Ellede er lokalplanlagt til 27 boliger (rammeområde K03.BL01).
- Areal mellem Nyrupvej og Raklev Skillevej er lokalplanlagt til 21 boliger (rammeområde K03.B03).
- Areal mellem Bredekilde og Hestehøje med plads til ca. 12 boliger (rammeområde K03.B10).
- Arealer på Herredsåsen med plads til ca. 325 boliger, hvoraf de 222 er lokalplanlagt (rammeområderne K03.B06, K03.B19 og K03.B22).
- Arealer øst for Lupinvej til ca. 163 boliger, hvoraf de 132 er lokalplanlagt (rammeområderne K04.B06 og K04.B07).
- Areal nord for Holbækvej mod Kåstrup til ca. 190 boliger og en børneinstitution (rammeområde K04.B15).
- Areal syd for Røsnæsvej, Kalundborg vest (Fjordgården), med plads til 26-46 boliger (K02.B11).
- I et omdannelsesområde i midtbyen forventes ca. 200 boliger.
De nævnte områder er til parcelhuse og/eller rækkehuse og lignende, lav bebyggelse. På arealet nord for Holbækvej mod Kåstrup må der være etagehuse.
Udviklingen i den østlige del af Kalundborg nord for Holbækvej skal ses som første etape i en langsigtet plan for byudvikling ud mod Kåstrup - se dispositionsplanen for boligområdet ved Holbækvej.
Dispositionsplan for ny udbygningsområde nord for Holbækvej i Kalundborg
Øvrige BYOMRÅDER i planområdet
I byzonelandsbyerne Ulstrup, Kåstrup-Spangsbro, Årby og Rørby er der areal til ca. 209 nye boliger.
- Kåstrup-Spangsbro: Nord for Tømmerupvej er der lokalplanlagt for 45 boliger (rammeområde K10.B05)
- Årby: Mod nord er der planlagt for 62 boliger (rammeområderne K08.B03 og K08.B05)
- Rørby: Mod syd er der restrummelighed i lokalplan på 71 boliger (del af rammeområde K09.B03)
- Ulstrup: Der er planlagt for 21 boliger (rammeområderne K11.B04-B09)
I Ulstrup planlægges 21 boliger som forsøgsbyggeri med udgangspunkt i skitser til landskabeligt velintegrerede byggeetaper i det kuperede landskab nord og vest for landsbyen. Tilflytning vil understøtte den decentrale offentlige service i landområdet.
Afgrænsede landsbyer
I planområdets afgrænsede landsbyer er der ikke planlagt for egentlig udbygning, men der kan opføres boliger som huludfyldning.
Byomdannelse
I planperioden skal der satses på en omdannelse af det gamle erhvervskvarter i Elmegade. Bl.a. en række værksteder forudsættes udflyttet eller lukket.
I alt forventes ca. 200 boliger i omdannelsesområdet. Størst potentiale for nye boliger er i karréen afgrænset af Sct. Jørgensbjerg, Slagelsevej, Elmegade og Margrethevej.
I samme område - eller godt knyttet hertil - skal overvejes placeret en børneinstitution.
Også andre steder i Elmegade og Bredgade kan der opføres boliger, hvis der opnås gode miljøforhold.
Kommuneplanen rummer tillige mulighed for omdannelse af det tidligere Kalundborg Sygehus til blandet bolig og erhverv. I alt forventes ca. 50 boliger. Der er tale om omdannelse af eksisterende bygningsmasse inden for byområdet (rammeområde K04.BL01).
Byfornyelse og bevaringshensyn
Arkitektonisk kvalitet kan styrke bymiljøerne og der skal værnes om de bygningskulturelle værdier. Derfor stilles krav om at bygningsrenoveringer, tilbygninger og udvidelse af bevaringsværdige huse respekterer den oprindelige byggestil. Der ligger en forpligtelse til at varetage hensyn til betydningsfulde enkeltbygninger og bymæssige sammenhænge i de afgrænsede kulturmiljøer i bykernen.
For bykernens særligt bevaringsværdige områder er det målsætningen:
- at bevare og forbedre det eksisterende købstadsmiljø.
- at boligerne gøres tidssvarende med hensyn til indretning, udstyr og isoleringstilstand. Boligfornyelsen skal resultere i et varieret udbud af boliger evt. gennem sammenlægning af boliger.
- at det nuværende antal boliger i de blandede områder opretholdes eller udvides. Nedlæggelse af boliger bør så vidt muligt undgås eller erstattes af nye boliger.
- at bevare erhverv, der er uden gener for og naturligt hører hjemme i boligområderne.
- at forbedre friarealerne inden for den enkelte ejendoms rammer ved fjernelse af uhensigtsmæssig bebyggelse.
- at bevare eller forbedre gademiljøet gennem trafiksanering, beplantning, belægning, regulering af facadeforhold og skiltning m.m.
- at gennemføre byfornyelse med hensyntagen til de nuværende beboere.
For de bevaringsværdige landsbyer er det målsætningen, at de særligt bevaringsværdige træk fastholdes gennem udarbejdelse af lokalplaner og evt. beslutninger om bygningsfornyelse af ejendomme af særlig betydning for landsbymiljøet.
For BYOMRÅDER i planområdet ønskes en udvikling, hvor udbygningen i højere grad forholder sig til landsbyernes karakteristiske træk og traditionelle strukturer.
Detailhandel
Detailhandelsplanen fastlægger Kalundborg som kommunens væsentligste handelscenter, og giver en stor rummelighed til udvikling af detailhandlen.
Butikker med dagligvarer og udvalgsvarer skal ligge inden for detailhandelsafgrænsningen. I planperioden gives der mulighed for at øge byens butiksareal med 21.600 m2 bruttoetagemeter.
Med Kordilgade som centralt handelsstrøg skal butiksområdet udvikles langs Vænget, Bredgade og Elmegade. Der lægges vægt på gode forbindelser og sammenknytning imellem butikskoncentrationerne.
Lokaliseringsmulighederne for butikker er gradueret bl.a. for at koncentrere dagligvarehandlen nær Kordilgade. Størstedelen af Elmegade planlægges for indpasning af større udvalgsvarebutikker. I Højbyen, Skibbrogade og Sct. Jørgensbjerg må der være mindre specialbutikker.
Butikker med særligt pladskrævende varegrupper skal ligge i erhvervsområder ved Holbækvej, Sydhavnsvej og Hovvejen. Der mulighed for sammenlagt 37.400 m2 bruttoetagemeter butikker til særligt pladskrævende varegrupper.
Udenfor detailhandelsområdet kan der etableres enkeltstående butikker til lokalområdets daglige forsyning efter retningslinjerne i kommuneplanens detailhandelsafsnit vedr. butikker til lokalområdets forsyning.
Erhvervsområder
I planområdet er udbygningsmuligheder til lokalisering af nye erhvervsvirksomheder på 145 ha i Kalundborg by og Rørby:
- Nord for Holbækvej er der et område på 4 ha til hotel- og konferencevirksomhed (rammeområde K04.E03).
- Stejlhøj ved Holbækvej er der restrummelighed på ca. 11,6 ha til lettere erhverv (Rammeområde K05.E01).
- Område øst for Hovvejen og nord for jernbanen på ca. 18,2 ha til lettere erhverv (Rammeområde K05.E11).
- Område øst for Hovvej og syd for banen med restrummelighed på ca. 21,8 ha til tungere erhverv samt yderligere udlæg på 25 ha disponible arealer, som indgår i nyudlæg i Forslag til Kommuneplan 2017. (Rammeområde K05.E10).
- Mindre areal på Flakagervej på 1,2 ha til tungere erhverv (Rammeområde K05.E07)
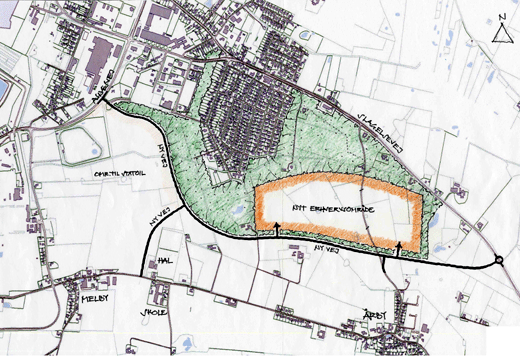
- Område imellem Slagelsevej og Årby på ca. 50,2 ha til tungere erhverv (Rammeområde K05.E09.) Se dispositionsplanen for området.
- Område vest for Asnæsværket på 13 ha til tungere havneerhverv (Rammeområde K07.E02)
Udbygningsmulighederne omkring Kalundborg by er begrænsede og derfor ønskes eksisterende og nye erhvervsarealer i Kalundborg by målrettet større havneorienterede virksomheder samt tungere erhvervsvirksomheder blandt andet indenfor produktions- og procesindustri. Sammenhængende større erhvervsarealer er desuden vigtige for områdets virksomheder og deres mulighed for genanvendelse af hinandens restprodukter - symbiosen. Læs kommuneplanens afsnit om erhvervsudbygning.
Om havnen
Der er planlagt for en havneudvidelse, Ny Vesthavn, hvor ca 43 ha er reserveret til havnerelateret erhvervsvirksomheder og massegods. Derved kan havnens transportfunktioner styrkes, som en af de væsentligste havne i landet.
Gennemførelse af planen for Ny Vesthavn omplacerer byens færgetrafik væk fra midtbyen. Med frigjorte færgekajer og bygningssaneringer langs Vestre Havnevej kan der skabes nye muligheder for anvendelsen af de velbeliggende arealer ved den gamle bykerne – aktiviteter som både for havnen, borgere, turister og handlen kan blive af stor værdi. Se nærmere om planerne for omdannelse til Kalundborg Havnepark nedenfor.
Dispositionsplan for erhvervsområde med ny vejføring fra Slagelsevej mod havnen rammeområde K05.E09.
Ny jernbanestation
Til en ny jernbanestation med gæsteparkering udlægges der et areal ved Novo/Stejlhøj.
Veje, stier og trafiksikkerhed
Der planlægges for, at trafiksystemet i Kalundborg skal tilgodese lettere fremkommelighed under hensyn til god trafiksikkerhed.
Hovedlinjer i vej- og stiplanen:
- Overordnet arbejdes der for at Rute 23 på strækningen mellem Kalundborg og Regstrup udbygges til motorvej.
- Forgrening af Slagelsevej syd om nyt erhvervsområde vil lette trafikken inde i byen.
- Ny vej syd om Melby.
- Til aflastning af Elmegade skal anlægges en ny vej langs banen mellem Jernbanevej og Stationsvej.
- Bredgade, Elmegade, Nygade og Sct. Jørgensbjerg skal trafiksaneres.
- På lange og brede veje i de ældre boligkvarterer skal der fartdæmpes og miljøforbedres med træer.
Udbygningen og forbedringer af stinettet i hele planområdet skal fortsætte såvel med cyklistsikre veje og selvstændige stier.
Endelig ses det visuelle miljø også værdifuldt at fremme, så der skal sættes ind med miljøforbedringer langs væsentlige trafikveje, fx Holbækvej.
Område til uddannelse og forskning
Ledige arealer i det store område med offentlig virksomhed og lignende ved Rynkevangen, ses som velegnet for placering af nye uddannelses- og evt. forskningsvirksomhed.
Nye institutioner
Der forventes behov for areal til nye børneinstitutioner i udviklingsområderne ved Lupinvej og Elmegade.
Kultur og fritid
Der er en planlægning i gang om udvikling og fornyelse af byens kultur- og fritidsfaciliteter. Der ses ved havnefronten - nær stationen - et stort potentiale i udviklingen af et mere borgervenligt område. Ydermere er der med etableringen af Bevægelseshuset Spiralen skabt et nyt initiativ, som sammen med en bedre udnyttelse af byrummene til fysiske aktiviteter kan styrke byens attraktion og tiltrækning.
Rekreative arealer og grønne kvaliteter
Der er udarbejdet en Grøn plan for Kalundborg by, der samlet ser på de grønne områder, de biologiske værdier samt stiforbindelser. Kalundborg skal fortsat udvikles med rekreative områder samt pladser og torve til ophold, leg og uformelt samvær. Konkret fastlægges der minimumskrav til størrelsen af nye boligområders fælles friarealer.
Afvekslende bevoksning og biologisk mangfoldighed skal tilstræbes mange steder. Befolkningens adgang til de rekreative områder i byen og ud i det åbne land skal sikres og styrkes. Grøn plan for Kalundborg beskriver nærmere hvordan byens grønne struktur kan udvikles. De eksisterende grønne områders kvaliteter forbedres, samtidig med at de bindes bedre sammen gennem stiforbindelser og koordinerede plejeplaner.
Munkesøparken udvikles som byens centrale aktivitetsområde med fodbold-, tennis-, basketbaner og andre aktivitetsmuligheder. Møllebakken ligger højt over Kordilgade og er med skovområdet, de store plæner og mindre grupper af træer en park, der indbyder til picnicture og afslapning med udsigt over Kalundborg Fjord. Gisseløre indeholder mere vild natur end de to andre områder pga. dynamikken ved fjorden. De eksisterende grønne områder suppleres af den kommende havnepark, som bliver en mere bypræget park, hvor der vil være mange aktiviteter, ikke mindst i forbindelse med en mulig krydstogtpier.
Byens grønne kvaliteter forbedres derudover med træer langs byens indfaldsveje og brede trafikveje, i midtbyen og på de brede villaveje.
Den grønne struktur forbedres med et nyudlagt rekreativt område i den sydlige del af byen.
Stier
I kommunens stiplan er der forslag til nye stier i planområdet, bl.a. som forbindelsesstier mellem bysamfundene og fra sommerhusområderne samt til andre rekreative og landskabelige destinationer.
Stinettet i byområderne er forholdsvis veludbygget, men stiplanen foreslår, at eksisterende stier knyttes bedre sammen, for at sikre muligheden for at kunne cykle til skole, haller og byens centrum. Derudover forbedres muligheden for at færdes mellem de rekreative områder, ligesom forbindelsen til det omgivende landskab styrkes.
Ny skov
Med udvikling af skovrejsningsområderne nord for Kalundborg vil landskabet tilføres nye værdier og der opnås forbedrede rekreative kvaliteter. Desuden forbindes de grønne områder i byen med det omgivende landskab.
Kulturhistoriske værdier
Kalundborgs historie har resulteret i en lang række værdifulde byggerier med Vor Frue Kirke fra 1200-tallet som den mest prominente. En række af de mest karakteristiske områder er udpeget til værdifulde kulturmiljøer med henblik på at sikre de historiske træk. Områderne er bl.a. De 100 huse, Møllebakken og byggeforeningshusene på Vedels- og Birchsgade.
Fritid og turisme
Kalundborg by spiller en stor rolle som servicecenter for kommunens gæster. De turistmæssige udviklingspotentialer ligger i kvalitetsudvikling af byens shopping- og gå-i-byen miljø, i forbedring af rammerne for krydstogtsturisme (via en levendegjort havnefront) og i udvikling af de kulturhistoriske seværdigheder i Højbyen med kirken og museet.
Der ses store muligheder i udviklingen af erhvervsturismen. Kalundborg Kommune har i de senere år arbejdet intensivt med at skabe rammer for etablering af et nyt konferencehotel i byens udkant samt et større feriecenter ved Klintegården på Røsnæs. 75 % af alle hotelovernatninger kommer fra erhvervsturister. Derudover besøger over 100 internationale erhvervsgrupper Kalundborg i forbindelse med Symbiosen.
Følgende lokalområder er særligt vigtige for turismen i Kalundborg-området:
Højbyen udgør kommunens vigtigste kulturmiljø. Det er allerede i dag et søgt turistmål, men det er vigtigt at skabe mere liv i området. For at levendegøre Højbyens fantastiske potentiale er der i 2012/2013 igangsat et ambitiøst projekt med fokus på Kalundborg som Korsridderby.
Røsnæs-området er nok kommunens mest spektakulære eller – om man vil – ’sceniske’ naturområde; et voldsomt kuperet landskab med vekslende beplantning og bebyggelse, som bestandig åbner nye landskabsbilleder og udsigter. Røsnæs rummer store potentialer som turist- og rekreativt område. Da området allerede nu er tæt bebygget og meget besøgt, skal udviklingen primært foregå som en kvalitativ udvikling. En restriktiv planlægning, der beskytter såvel de naturmæssige som de kulturarvsmæssige bevaringsinteresser, er nødvendig.
Naturstyrelsen og Kalundborg Kommune har gennem et fælles kulturarvsprojekt levendegjort den militærhistoriske historie gennem etablering af flere oplevelsesspor og spændende formidling. Der er etableret besøgstjeneste og adgang til Røsnæs Fyr og cafeområde til betjening af de besøgende.
Tekniske anlæg
I den sydlige del af Kalundborg by er der udpeget et område til placering af større fælles biogasanlæg. Området er en overordnet udpegning og den endelige placering vil afhænge af den specifikke planlægning.
Omdannelse Kalundborg Havnepark
I planperioden skal der videreudvikles på omdannelsen af en del af Kalundborg Havn, Vestre Havneplads, til en Bynær havnepark i forbindelse med, at DLG-siloen blev nedrevet i 2015 (rammeområde K01.R03). Målet er et offentligt, rekreativt område med publikumsorienterede funktioner og havneaktiviteter, eksempelvis fiskeri, fritids- og lystsejlads, havnebad, grønne arealer med plads til aktiv udfoldelse, café, restaurant, kiosk, mindre butikker, offentlige funktioner samt klubhuse for foreninger orienteret mod brug af havn og fjord. Herudover skal der være mulighed for ny bebyggelse i området som dog ikke omfatter boliger og høje dominerende bygninger. Anvendelse bl.a. kan understøtte aktiviteterne i havneparken og det maritime liv, som fx krydstogtfunktion, idet der i tilknytning til området er mulighed for at etablere pier for krydstogtskibe.
I omdannelsen lægges der vægt på at der skabes en visuel og funktionel sammenhæng mellem by og havn, herunder at der sikres en arkitektonisk og landskabelige helhed mellem Højbyen, midtbyen og havnefronten.
Med afsæt i kommuneplanen har kommunen i 2015 taget initiativ til en indledende proces, der kan danne grundlag for en bred følelse af ejerskab blandt byens borgere og foreninger. Det er afgørende, at havneparken forankres socialt og kulturelt. Der arbejdes i en udviklende proces med fokus på interessentinddragelse, og hvor de fremtidige brugere spiller ind og er deltagende. Dette gælder også i forhold til at etablere midlertidige aktiviteter og dynamiske indretninger som led i etapedelingen. Disse kan give en pejling af, hvad der er realistisk at etablere på havnefronten og hvilke aktiviteter der er interesse for – og er afgørende for, at det bliver en attraktiv havnepark med lokal forankring.
I løbet af 2016 og 2017 er der etableret flere afprøvende og semipermanente tiltag, som udspringer af den inddragende proces. Fokus har været at omdanne den gamle siloplads med anlæg og indretning, som inviterer til brug i den afprøvende fase. I løbet 2017 og 2018 forventes en yderligere omdannelse, som bliver af mere permanent karakter. De permanente løsninger udvikles med afsæt i de erfaringer, der indhentes sammen med borgere i forlængelse af den afprøvende fase.
Nedenfor er vist en retningsgivende plan, der viser områdets midlertidige indretning.
Omdannelsesområde Kalundborg Havnepark
Midlertidige indretning af Bynær Havnepark Kalundborg (2017). Kilk her for at se kortet i større format
Udviklingsskitser
Udviklingsskitser over Kalundborg by, Årby, Rørby og Ulstrup med nye udbygningsområder og omdannelser/ændringer i Kommuneplan 2013-2024.
Kalundborg by
Årby og Rørby
Ulstrup
Links og dokumenter
Informationer på kort
> Kommunens digitale kortside med rammeområderne
Dispositionsplaner som pdf:
> Dispositionsplan for udbygning nord for Holbækvej mod Kåstrup
> Dispositionsplan for nyt erhvervsområde ved Kalundborg Øst








